К основному содержимому

м. Дніпро, вул. Марії Лисиченко, 3.

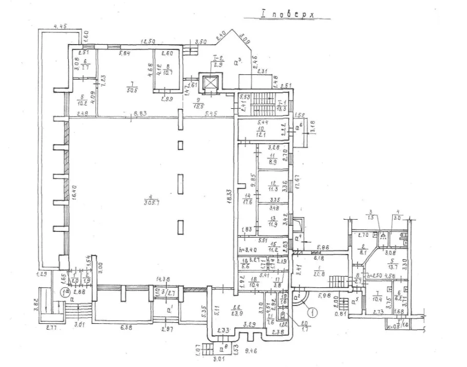
ТОВ «АТБ-маркет» пропонує розглянути питання покупки приміщення, розташованого за адресою: м. Дніпро, вул. Марії Лисиченко, 3.

Приміщення включає в себе перший поверх та підвал, загальною площею 876, 8 кв.м.:

1 поверх 618, 8 кв.м.

Підвал 258, 0 кв.м.

Якщо Вам цікава покупка площі даного об'єкта, просимо Вас направити заповнену комерційну пропозицію на електронну адресу: аrenda@atbmarket.com

Додаткові документи
Головна Акції Кошик Кабінет