К основному содержимому

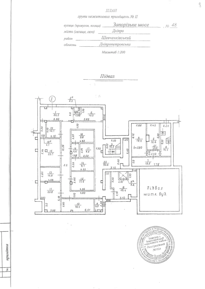
м. Дніпро, Запорізьке шосе, 48.

ТОВ «АТБ-маркет» пропонує розглянути питання купівлі приміщення, розташованого за адресою: м. Дніпро, Запорізьке шосе, 48.

Приміщення включає в себе перший і підвальний поверхи, загальною площею 839,2 кв.м.:

1 поверх – 460,1 кв.м.

Підвал - 379,1 кв.м.

Якщо Вам цікава покупка площі даного об'єкта, просимо Вас направити заповнену комерційну пропозицію на електронну адресу: аrenda@atbmarket.com

Додаткові документи
Головна Акції Кошик Кабінет